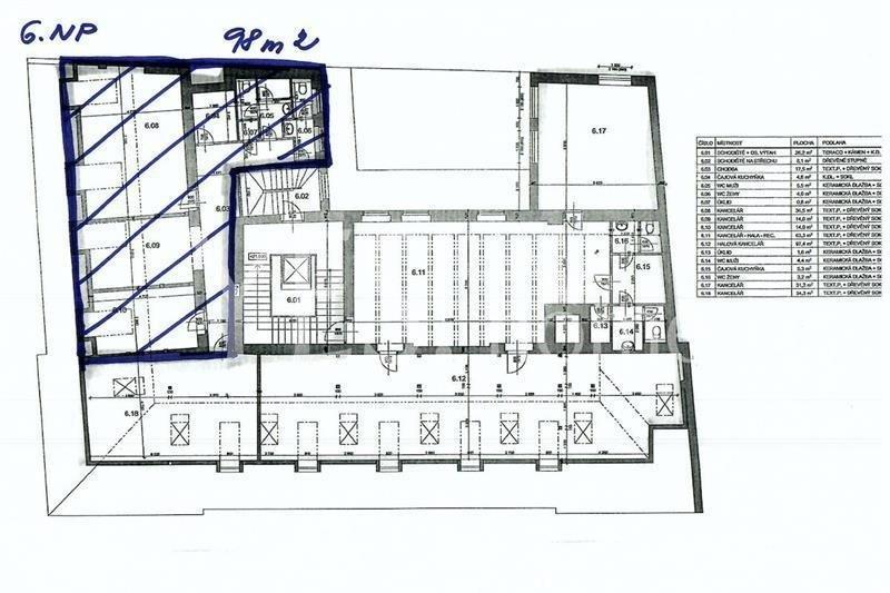
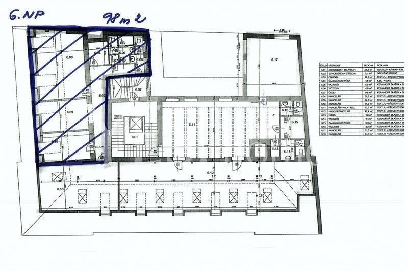
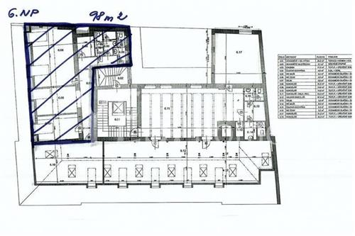
Attic, unfurnished office space to rent, 98 sqm, Politických vězňů, Praha 1 - Nové Město

000513
000513
000513
000513
Back Print
ID:
000513
Property type:
Commercial space
Property subtype:
Office space
Location:
Politických vězňů, Praha 1
Area:
98 sqm
Floor:
5th floor
Elevator:
Yes
Parking:
Garage
Furnished:
Unfurnished
PENB:
G
Available immediately:
Yes
Price:
25 000 CZK / month.
Price comment:
Bills incl. energy 5 000 CZK. Deposit 2 month. rents.
Kateřina Foitová
Kateřina Foitová
Attic, quiet, unfurnished office space, 98 sqm, 5th floor with elevator in well maintained Art Nouveau building with reception and security, close to Václavské náměstí, Politických vězňů street, Praha 1 - Nové Město. The space offers entrance hall, 3 separate offices, kitchen, cleaning room and 2 toilets. New carpets in combination with tiles. High-speed internet, optical cable from Praha1.net distributed to all offices + O2 antenna with a substation in the house. Reception and security service 8:00h-20:00h. Perfect location, next the house is metro st. Muzeum, line A,C or metro st. Můstek, line A,B, tram. st. Václavské náměstí. Bills inc. energy 5 000 CZK (electricity, heating, water and sewerage, elevator, garbage, cleaning and electricity in common areas, security of the building. Billable one a year according to actual consumption). Possibility of parking in the yard for extra fee 4 000 CZK. Refundable deposit 2 monthly rent. We offer rental contract for an indefinite period with a 3-month notice period. Perfect location, great price. Available immediately.

Arrange a viewing

Copyright © 2026 YES! home. All Rights Reserved.