Unfurnished four bedroom attic duplex apartment with terrace to rent, 168 sqm, Štefánikova, Praha 5 - Smíchov

000691
000691
000691
000691
Back Print
ID:
000691
Property type:
Apartment
Disposition:
4 bedroom (5+1)
Location:
Štefánikova, Praha 5
Area:
160 sqm
Floor:
4th floor
Elevator:
Yes
Parking:
Garage
Terrace:
Yes - 8 sqm
Furnished:
Unfurnished
PENB:
G
Available immediately:
Yes
Price:
60 000 CZK / month.
Price comment:
Bills 100 CZK/sqm/month. + electricity and gas. Deposit 2 month. rents.
Kateřina Foitová
Kateřina Foitová
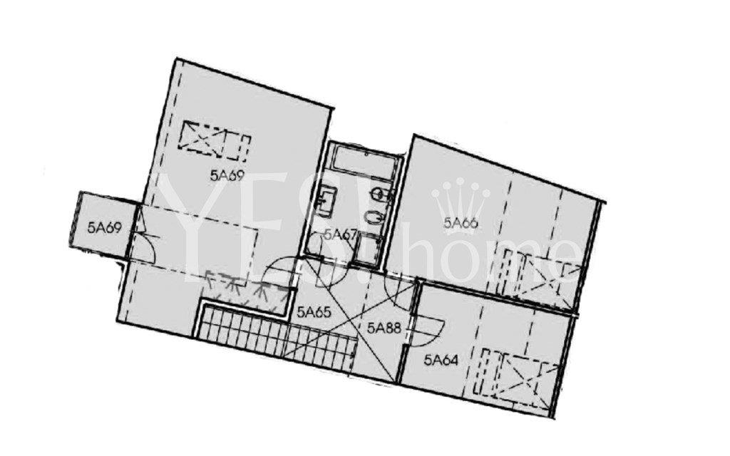
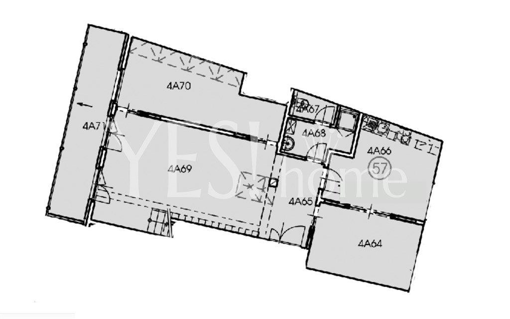
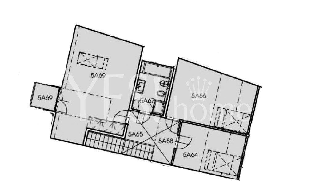
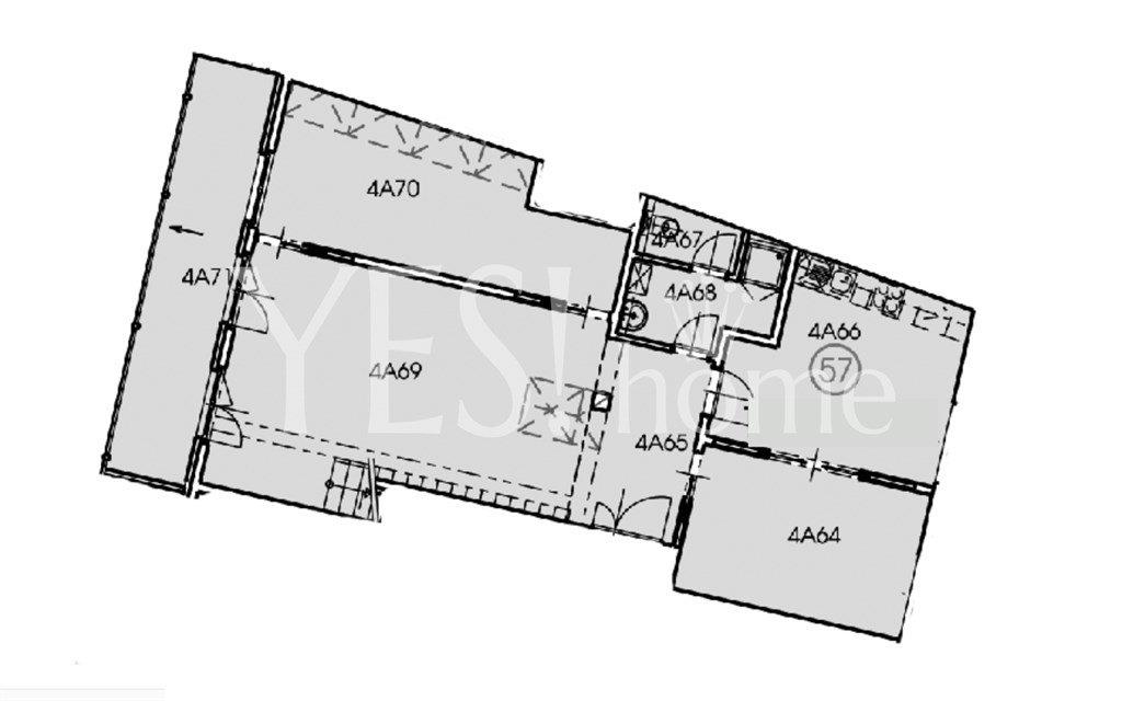
Attractive, new renovated, air-conditioned, unfurnished, attic 4 bedroom duplex apartment with 2 terraces on each floor, total area of 168,43 sqm (apt. 160 sqm, terraces 8,43 sqm), 3rd and 4th floor with elevator in a representative and well maintained building with reception 24/7, Štefánikova street, Praha 5 - Smíchov. The apartment offers living room, 4 bedrooms, separate fully equipped kitchen (hood, hob, oven, dishwasher, fridge), 2 bathrooms ( bath and toilet, shower and toilet) and 2 terraces (downstairs larger terrace with seating, upstairs smaller terrace, orientation courtyard). Quality wood floors combined with tiles. UPC internet, Casablanca INT. Perfect location next metro Anděl, line B, tram. Arbesovo náměstí or tram. and bus. Anděl. Bills 100 CZK/sqm/month. + electricity and gas. Parking for extra fee 4 500 CZK/place/month. Refundable deposit 2 monthly rents. Available immediately.

Arrange a viewing

Copyright © 2026 YES! home. All Rights Reserved.