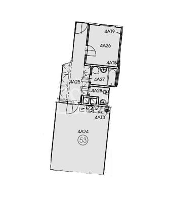
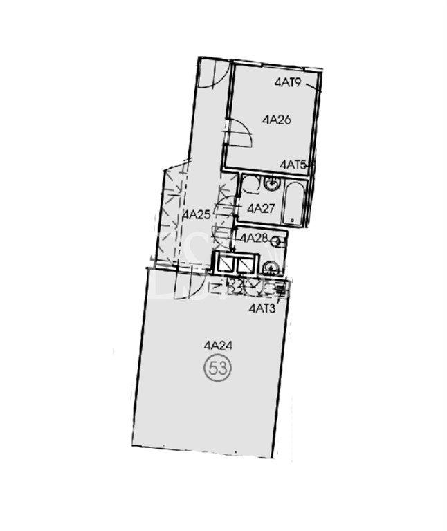
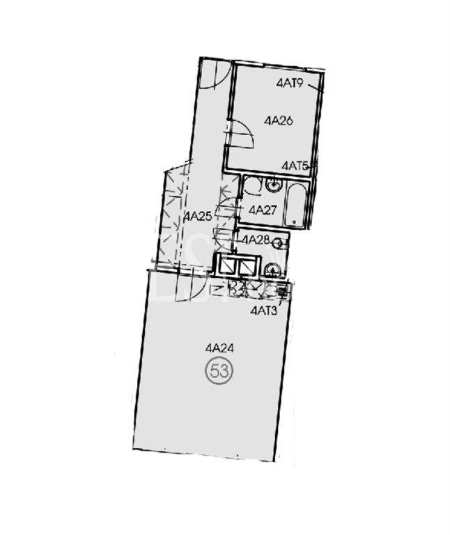
Office space to rent, 57 sqm, Štefánikova, Praha 5 - Smíchov

000286
000286
000286
000286
Back Print
ID:
000286
Property type:
Commercial space
Property subtype:
Office space
Location:
Štefánikova, Praha 5
Area:
57 sqm
Floor:
3rd floor
Elevator:
Yes
Parking:
Garage
Furnished:
Unfurnished
PENB:
G
Available immediately:
Yes
Price:
25 000 CZK / month.
Price comment:
Bills 100 CZK/sqm/month. + electricity.Deposit 2 month. rents.REA commission 1 month´s rent, no VAT.
Kateřina Foitová
Kateřina Foitová
Modern, new renovated, fully air-conditioned, very bright, unfurnished office space, 56,54 sqm, 3rd floor with elevator in very representative and well maintained building with reception 24/7, Štefánikova street, Praha 5 - Smíchov. The space offers entrance hall with storage spaces, 2 separate offices (larger office incl. kitchenette), bathroom with tube and separate toilet. Central heating. Laminate floors combined with tiles. UPC internet, Casablanca INT. Perfect location next metro Anděl, line B, tram. Arbesovo náměstí or tram. and bus. Anděl. Bills 100 CZK/sqm/month. + electricity. Parking for a fee 4 500 CZK/place/month. Refundable deposit 2 monthly rents. Available immediately.

Arrange a viewing

Copyright © 2026 YES! home. All Rights Reserved.