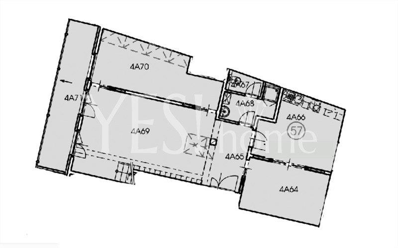
Unfurnished attic two-storey office space with two terraces to rent, 168 sqm, Štefánikova, Praha 5 - Smíchov

000238
000238
000238
000238
Back Print
ID:
000238
Property type:
Commercial space
Property subtype:
Office space
Location:
Štefánikova, Praha 5
Area:
168 sqm
Floor:
3rd floor
Elevator:
Yes
Parking:
Garage
Furnished:
Unfurnished
PENB:
G
Available immediately:
Yes
Price:
60 000 CZK / month.
Price comment:
Bills 100 CZK/sqm/month. + electricity and gas. Deposit 2 month. rents.
Kateřina Foitová
Kateřina Foitová
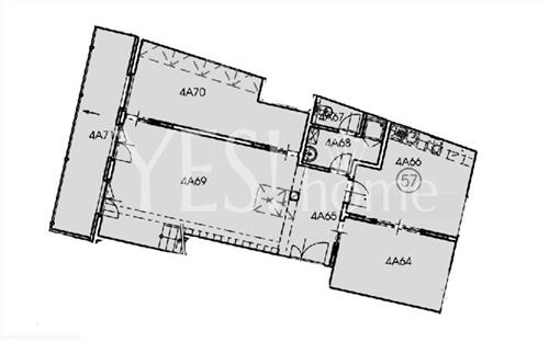
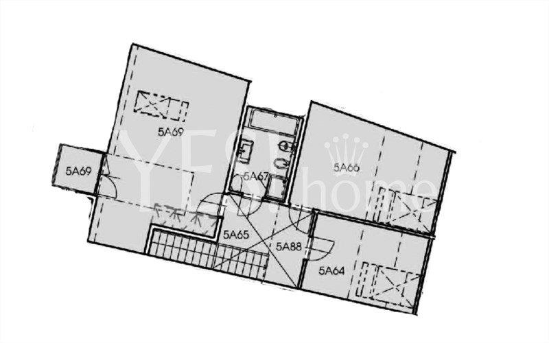
Attractive, new renovated, air-conditioned, unfurnished, attic two-storey office space with 2 terraces on each floor, total area of 168,43 sqm, 3rd and 4th floor with elevator in a representative and well maintained building with reception 24/7, Štefánikova street, Praha 5 - Smíchov. The space offers 5 separate offices, meeting room, separate fully equipped kitchen, 2 bathrooms (bath and toilet, shower and toilet) and 2 terraces overlooking the quiet courtyard. Quality wood floors combined with tiles. UPC internet, Casablanca INT. Perfect location next metro Anděl, line B, tram. Arbesovo náměstí or tram. and bus. Anděl. Bills 100 CZK/sqm/month. + electricity and gas. Parking for a fee 4 500 CZK/place/month. Refundable deposit 2 monthly rents. Available immediately.

Arrange a viewing

Copyright © 2026 YES! home. All Rights Reserved.