Office space to rent, 110 sqm, Lazarská, Praha 2 - Nové Město

000891
000891
000891
000891
Back Print
ID:
000891
Property type:
Commercial space
Property subtype:
Office space
Location:
Lazarská, Praha 2
Area:
110 sqm
Floor:
3rd floor
Elevator:
Yes
Parking:
Garage
Furnished:
Unfurnished
PENB:
G
Available immediately:
Yes
Price:
35 000 CZK / month.
Price comment:
Bills 6 000 CZK + VAT. Energy will be transferred to the tenant.
Kateřina Foitová
Kateřina Foitová
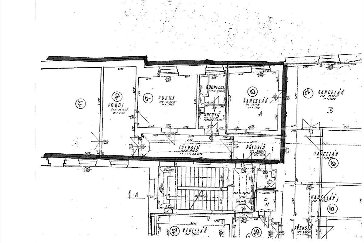
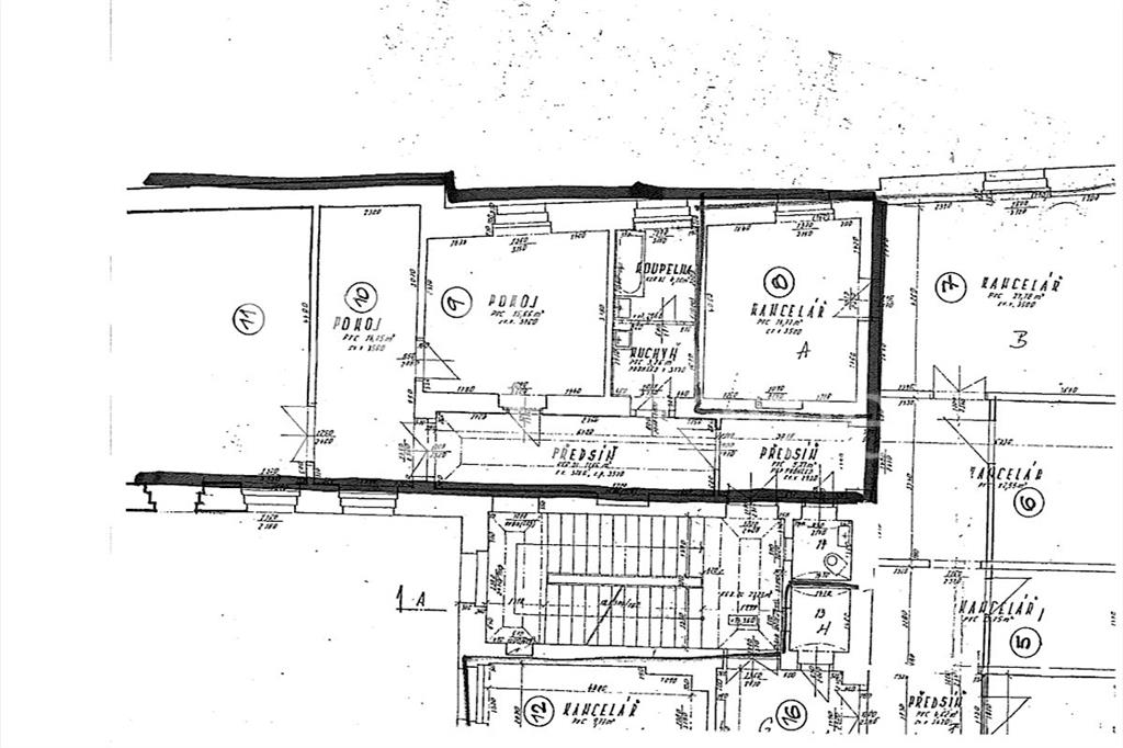
Unfurnished office space, 110 sqm, 3rd floor in new renovated historic building with elevator, parking, reception, 24/7 security services on the border of Praha 1 and Praha 2, near Václavské náměstí and Karlovo náměstí, Lazarská street, Praha 2 - Nové Město. The space offers large entrance hall, 4 separate offices facing the courtyard and quiet cul-de-sac, separate fully equipped kitchen, bathroom with shower corner and toilet and storage room for server equipment. Carpeted floors combined with tiles,large triple glazed windows, high ceilings, new combined gas boiler for hot water and heating with individual regulation, intercom, security door. Near the house tram st. Lazarská or metro st. Národní třída, line B or metro st. Můstek, line A,B. Parking in the stacker in the courtyard for extra fee 3 900 CZK + VAT. Rent 35 000 CZK + VAT for VAT payers or 37 000 CZK for non-VAT payers. Bills 6 000 CZK + VAT. Energy will be transferred to the tenant. Perfect address for your business. Available immediately. I recommend!

Arrange a viewing

Copyright © 2026 YES! home. All Rights Reserved.