Pronájem kancelářských prostor s terasou, 185 m2, Klimentská, Prahy 1 - Nové Město

000867
000867
000867
000867
zpět Tisk
ID:
000867
typ nemovitosti:
Komerční prostor
podtyp nemovitosti:
Kancelářský prostor
lokalita:
Klimentská, Praha 1
plocha:
185 m2
patro:
Přízemí
výtah:
Ne
parkování:
Garáž
terasa:
ano - 83 m2
PENB:
G
volný ihned:
ano
cena:
52 737 Kč / měs.
cena poznámka:
Poplatky 20 196,68 Kč + DPH (zálohy na služby 140 Kč/ m2). Kauce 2 nájmy. RK provize 1 nájem, neplatíte DPH.
Kateřina Foitová
Kateřina Foitová
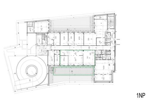
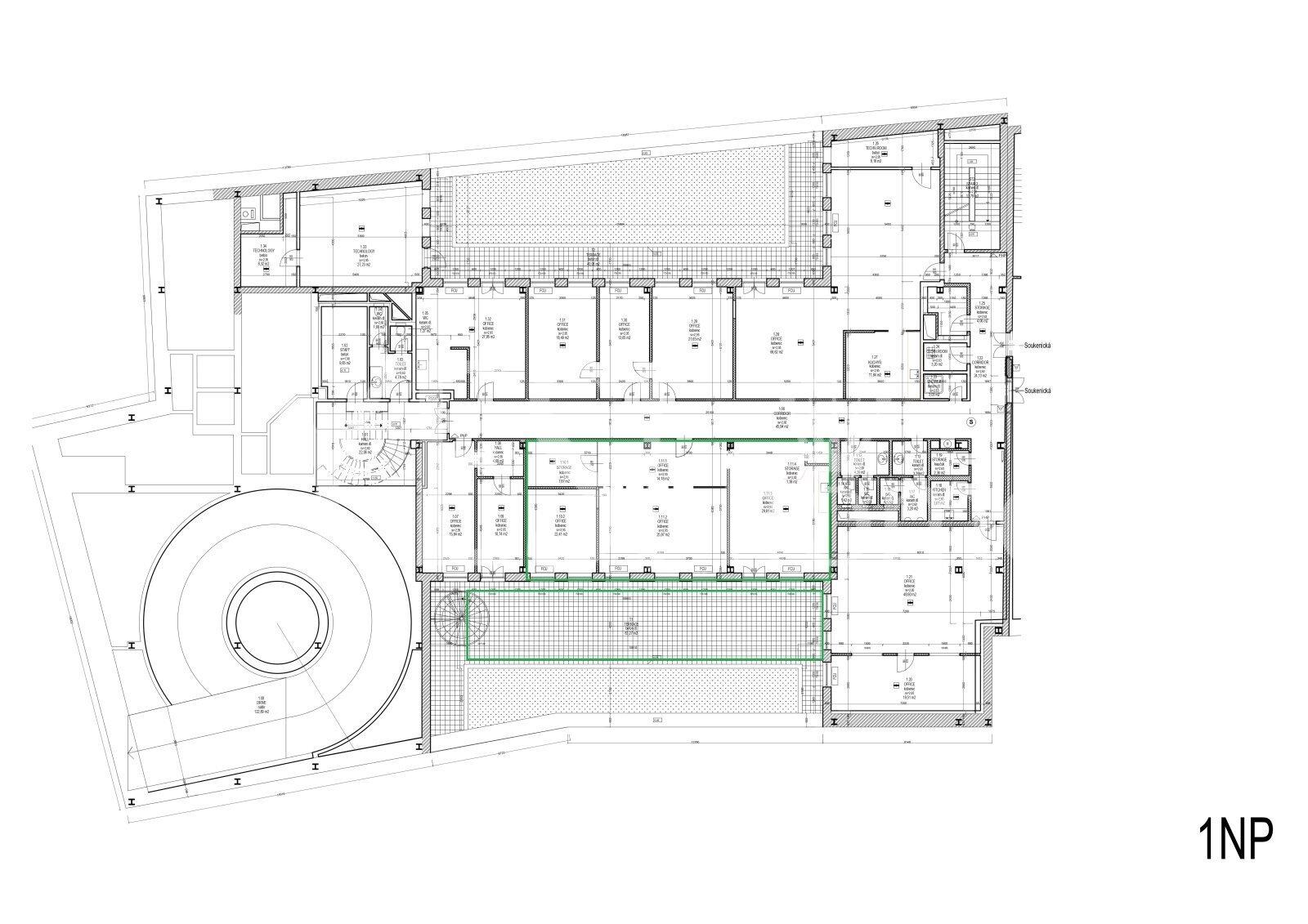
Nezařízené, plně klimatizované, kancelářské prostory s privátní terasou, 184,62 m2 (kancelář 101,62 m2, terasa 83 m2), přízemí s výtahem reprezentativní, moderní, administrativní budovy s recepcí a ostrahou 24/7, vstupem na magnetické karty, rychlým internetem s optickým připojením a podzemním parkingem, na prestižní adrese v klidné části centra, Klimentská, Prahy 1 - Nové Město. Každé patro disponuje společnou vybavenou kuchyňkou, koupelnou se sprchovým koutem, toaletami, tichými terasami orientovanými do vnitrobloku u vybraných jednotek. Na podlahách koberce, laminátové podlahy a dlažba. Možnost výběru i rozměrově jiné varianty kanceláří dle aktuální nabídky. U domu tram. Revoluční, metro Náměstí Republiky, linie B. K dispozici jsou až 4 parkovací stání za extra příplatek 6 000 Kč + DPH/1 stání/měsíc. Nájem 2 163,93 EUR + DPH (1 524,30 EUR rent + 639,63 EUR add on). Poplatky 20 196,68 Kč + DPH (zálohy na služby 140 Kč/ m2). Vratná kauce 2 měsíční nájmy. Volné ihned.

Žádost o prohlídku

Copyright © 2026 YES! home. All Rights Reserved.