Pronájem kanceláře, 52 m2, Štefánikova, Praha 5 - Smíchov

000271
000271
000271
000271
zpět Tisk
ID:
000271
typ nemovitosti:
Komerční prostor
podtyp nemovitosti:
Kancelářský prostor
lokalita:
Štefánikova, Praha 5
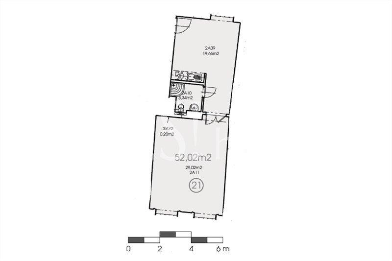
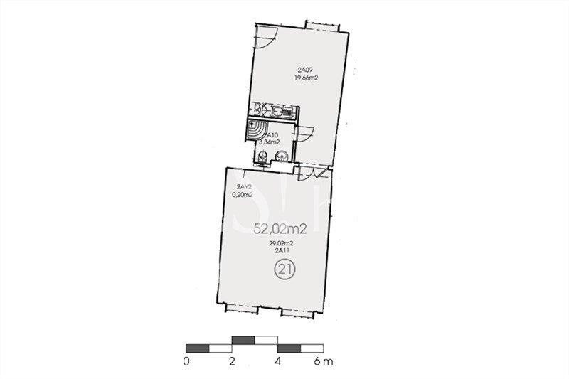
plocha:
52 m2
patro:
1. patro
výtah:
ano
parkování:
Garáž
zařízeno:
Nezařízeno
PENB:
G
volný ihned:
ano
cena:
19 247 Kč / měs.
cena poznámka:
Poplatky 80 Kč/m2/měs. + elektřina. Kauce 1 nájem. Parking 4 500 Kč/1 místo. RK provize 1 nájem, neplatíte DPH.
Kateřina Foitová
Kateřina Foitová
Atraktivní, moderní, nezařízené, zrekonstruované, klimatizované kancelářské prostory, 52,02 m2, 1. patro s výtahem v reprezentativní a velmi dobře udržované budově s recepcí 24/7, ulice Štefánikova, Praha 5 - Smíchov. Prostor nabízí vstupní místnost s vybavenou kuchyňskou linkou s výhledem do dvora, jednu prostornou světlou kancelář s výhledem do ulice a koupelnu se sprchovým koutem a toaletou. Centrální vytápění. Kvalitní dřevěná podlaha v kombinaci s dlažbou. UPC internet, Casablanca INT. Perfektní lokalita s výbornou dostupností u metra Anděl, linie B, tram. Arbesovo náměstí či tram. a bus. Anděl. Poplatky 80 Kč/m2/měs. + elektřina. Možnost parkingu v podzemní garáži za 4 500 Kč/místo/měs. Vratná kauce 1 měsíční nájem. Volné ihned.

Žádost o prohlídku

Copyright © 2026 YES! home. All Rights Reserved.