Pronájem kancelářského prostoru, 110 m2, Lazarská, Praha 1 - Nové Město

000909
000909
000909
000909
zpět Tisk
ID:
000909
typ nemovitosti:
Komerční prostor
podtyp nemovitosti:
Kancelářský prostor
lokalita:
Lazarská, Praha 1
plocha:
110 m2
patro:
5. patro
výtah:
ano
parkování:
Garáž
zařízeno:
Nezařízeno
PENB:
G
volný ihned:
ano
cena:
35 000 Kč / měs.
cena poznámka:
Poplatky 6 000 Kč + DPH. Energie se převádějí na nájemce.
Kateřina Foitová
Kateřina Foitová
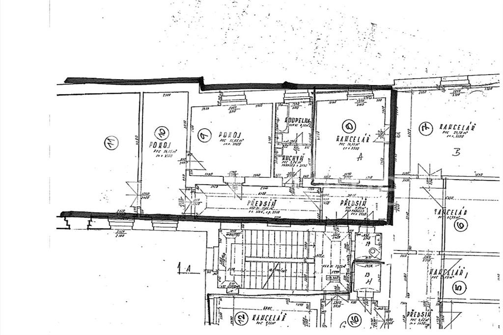
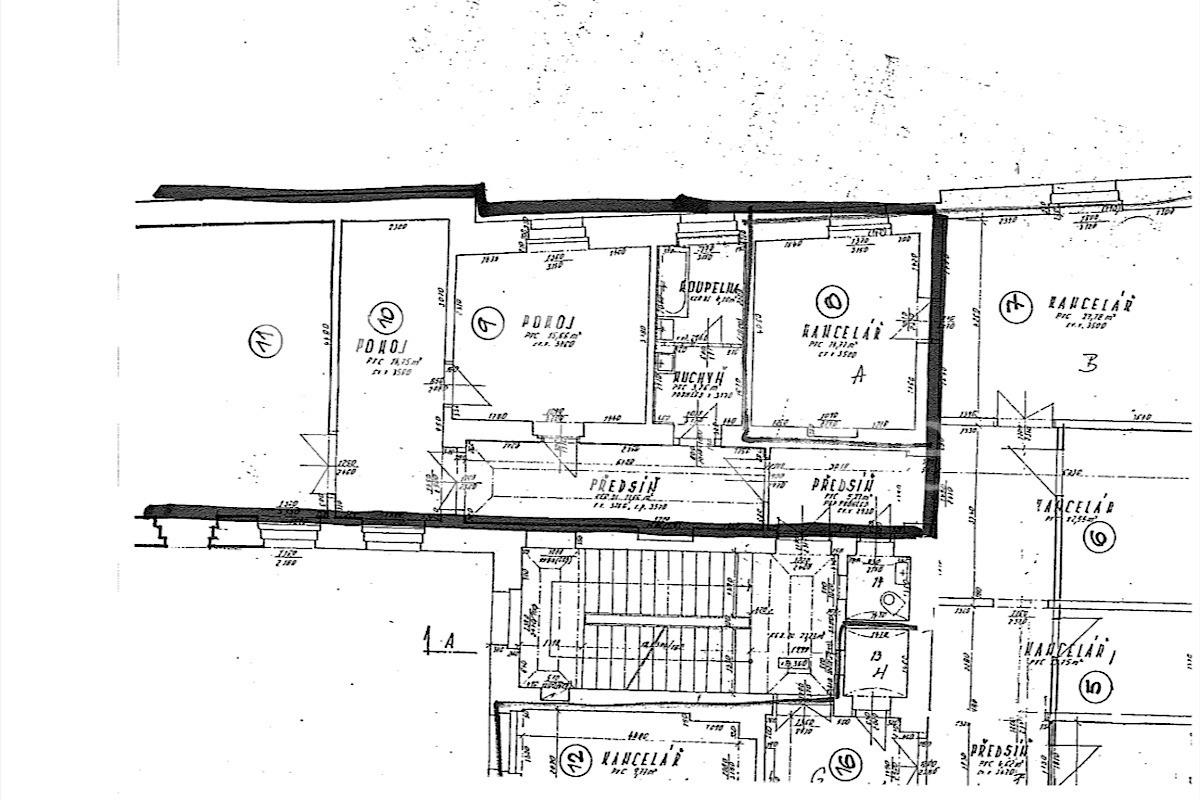
Nezařízený, kancelářský prostor, 110 m2, 3. patro nově zrekonstruovaného historického domu s výtahem, parkingem, recepcí a ostrahu 24/7 na rozhraní Prahy 1 a Prahy 2, nedaleko Václavského náměstí a Karlova náměstí, Lazarská, Praha 1 - Nové Město. Prostor nabízí velkou vstupní halu, 4 samostatné kanceláře orientované do vnitrobloku a klidné slepé ulice, samostatnou plně vybavenou kuchyňku, koupelnu se sprchovým koutem a toaletou a komoru pro umístění serverové techniky. Na podlahách koberce v kombinaci s dlažbou, velká trojitá okna, vysoké stropy, kombinovaný plynový kotel pro ohřev vody a vytápění s možností individuální regulace, intercom, bezpečnostní dveře. U domu tram Lazarská anebo metro Národní třída, linie B či Můstek, linie A,B. Možnost parkingu v zakladači ve dvorním traktu za příplatek 3 900 Kč + DPH. Nájem 35 000 Kč +
DPH pro plátce anebo 37 000 Kč pro neplátce. Poplatky 6 000 Kč + DPH. Energie se převádějí na nájemce. Perfektní adresa pro Váš byznys. Volné ihned. Doporučuji!

Žádost o prohlídku

Copyright © 2026 YES! home. All Rights Reserved.