Pronájem kancelářského prostoru, 169 m2, Politických vězňů, Praha 1 - Nové Město

000258
000258
000258
000258
zpět Tisk
ID:
000258
typ nemovitosti:
Komerční prostor
podtyp nemovitosti:
Kancelářský prostor
lokalita:
Politických vězňů, Praha 1
plocha:
169 m2
patro:
3. patro
výtah:
ano
parkování:
Garáž
zařízeno:
Nezařízeno
PENB:
G
volný ihned:
ano
cena:
38 000 Kč / měs.
cena poznámka:
Poplatky 55 Kč/ m2 včetně energií. Kauce 2 nájmy.
Kateřina Foitová
Kateřina Foitová
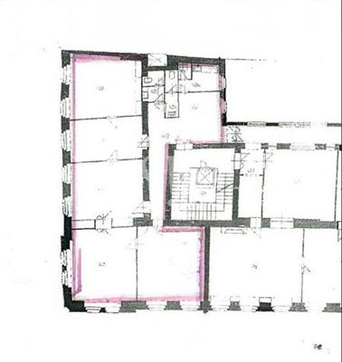
Nezařízený kancelářský prostor, 169 m2, 3. patro s výtahem v dobře udržovaném secesním domě s recepcí a ostrahou přímo u Václavského náměstí, Politických vězňů, Praha 1 - Nové Město. Prostor nabízí 5 kanceláří, kuchyňku a 2 toalety. Na podlahách koberce v kombinaci s dlažbou. Vysokorychlostní internet, optický kabel od Praha1.net rozveden do všech kanceláří + O2 anténa s rozvodnou v domě. Služba recepce 8:00h-20:00h. Perfektní poloha, u domu metro Muzeum, linie A,C či metro Můstek, linie A,B, tram. Václavské náměstí. Zálohy na služby 55 Kč /m2 včetně energií (elektřina, topení, teplá a studená voda (každá jednotka má své měřiče), úklid a elektřina ve společných prostorách, výtah, odvoz odpadu, ostraha objektu. Vyúčtování 1x za rok). Možnost parkingu ve dvoře 4 000 Kč. Vratná kauce 2 měsíční nájmy. Volné ihned.

Žádost o prohlídku

Copyright © 2026 YES! home. All Rights Reserved.